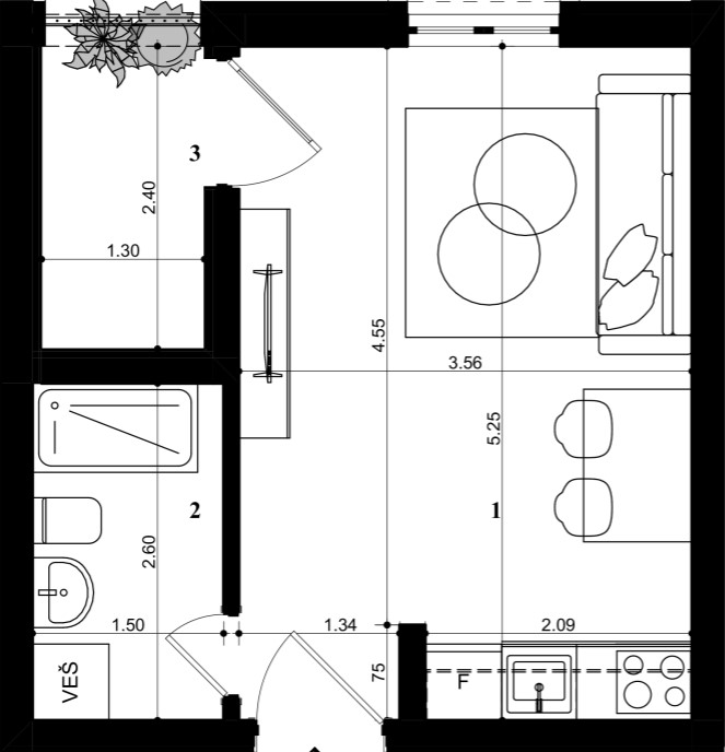
Garsonjera Stan PD01
  • Ulaz, kuhinja, trpezarija, dnevni 18.58
  • kupatilo 3.90
  • terasa 3.50
  • ukupna površina 25.98
Zakažite termin

    Lamela B stan PD01